Properties
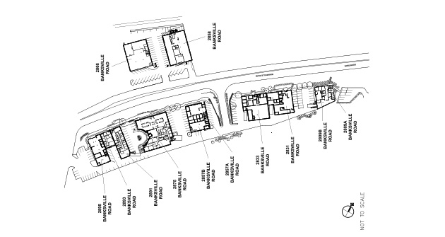
Banksville Business Center
2805-2895 Banksville Road, Pittsburgh, PA 15212
| Property Type: | Office/Flex |
| Total RSF: |
57,000 SF Office/Medical/Flex 20,000 SF Retail |
| Available RSF: | up to 5,500 SF |
| Description: |
Highly visible and accessible for retail and/or office; Right on Banksville Road. Site Plan |
| Available Properties: |
2809 Banksville Road Property Watch our Video Tour |
Tusk development in the news
View All NewsContact Us
Mailing Address:
Tusk Development
520 East Main Street
Suite 210
Carnegie, PA 15106
Phone: 412.489.5398
Email: info@tuskdevelopment.com










